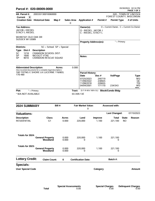
4839 Lake Lucerne Dr
Bidding Starts at $1
Your bid plus a 6% Buyer Fee ($5,000 Minimum) will equal the Final Purchase Price. Alternatively, you can choose to pay the Buyer Fee out of pocket prior to closing.
2% ($5,000 Minimum) Non-Refundable Earnest Money Due upon signing the Offer To Purchase
No Contingencies for: Radon, Well System, Well Water, Septic, Sale of Home, Survey. Inspection (with $5,000 cushion) okay; Financing and Appraisal (w/ $5,000 Gap) okay for non-cash Offers.
Rustic Northwoods lake cabin on the crystal clear spring fed Lake Lucerne with 200' feet of lake shore. Imagine a summer get away enjoying fishing off the boat dock just off the main cabin. At night enjoy a bonfire in your own fire pit. Or play cards and enjoy the summer breeze on your 3 season porch. Want to sip coffee lake side on your own private large wood deck? You're in luck. The large wood deck sits above the boat dock just below the 3 season porch. The main cabin features a natural wood fireplace, a separate bedroom with a loft for family or friends and the full bath has a shower with a full kitchen. bring extra friends or family to stay in the quaint guest cabin. The cabin and guest cabin come fully furnished. 2 Parcels estimated .92 acres.
Inclusions: All appliances and furnishings in both cabins. This however does exclude the 2 new recliners in the main cabin. See Exclusions below.
Exclusions: 2 New Recliners
Terms and Conditions
1. The State of Wisconsin Department of Safety and Professional Services (DSPS) regulates Auctions and Auctioneers in Wisconsin. The winning Bidder chosen after the Auction closes will become the Buyer and will be obligated to buy the property under the terms agreed to herein, subject to the Seller approving the final Bid Price as well as any other terms of the Bidder’s Offer. The DSPS classifies this Auction as an “Auction with Reserve" which means it is an auction where the Seller or his or her agent reserves the right to establish a minimum bid, to accept or reject any and all bids or to withdraw the goods or real estate from sale at any time prior to the announcement of the completion of the sale by the Auctioneer.
2. At Redefined Realty and Auction’s (RRA) sole discretion, Bidder registrations may need to be approved prior to bidding. All Bidder Registrations may be verified through various means prior to being allowed to bid, including, but not limited to, a credit card verification which may include a nominal credit card fee, Proof of Funds letter(s) and/or Lender PreApproval letters. If RRA cannot to its sole satisfaction verify this information or other information RRA deems relevant, Bidder’s registration may be delayed or denied. At RRA’s discretion, the maximum bid amount for a Bidder may be capped at the amount shown on the Proof of Funds letter and/or Lender PreApproval letter. Employees, RRA, and entities related to RRA are allowed to bid on this Real Estate.
3. The Seller of the real estate, at the Seller’s sole discretion, may Accept, Reject or Counter the highest Bid or do the same with any other bid should other terms to that bid be more or less favorable, or withdraw the property from the Auction per the DSPS definition of an “Auction with Reserve”. Items that might be considered by the Seller, among others, include a review of the PreApproval paperwork from Bidder’s lender and/or documented proof of funds. You will be notified within 72 hours of the close of the Auction if the Seller agrees to or rejects your Bid and Terms.
4. The real estate parcel being auctioned may or may not contain physical structures. If the Seller has Inspection or Testing documents of any kind related to the land or structures that the Seller deems relevant, these documents will be in the Documents section of this Auction or available to Bidders upon request. Bidder agrees to review all documents, disclosures, or other information provided by Seller or RRA pertaining to this Auction and perform all due diligence to Bidder’s satisfaction prior to making its bid.
5. The real estate parcel being auctioned, along with any structures and/or anything that might be considered personal property, is being sold “As Is,” “Where Is” and “In its Present Condition.” Bidder agrees to verify all information provided by Seller and/or RRA and to perform all desired due diligence to Bidder’s satisfaction prior to bidding on a property. Neither RRA nor the Seller, are making any guarantees or warranties implied or otherwise and such representation warranties, and guaranties are expressly disclaimed. When Bidder places a bid, Bidder agrees that the bid amount will reflect all the information or lack thereof, provided by Seller and RRA, as well as the due diligence or lack thereof performed by Bidder, and that the bid amount will reflect all Bidder’s potential known or unknown immediate or future obligations to fix, repair, replace, or otherwise use or resell the property.
6. Bidder may bid any amount equal to or greater than the current bid plus the minimum bid increment as set by the Auctioneer. The bidding software will allow a Bidder to place a bid and at the same time set a maximum bid amount. The maximum bid amount will not be disclosed to other bidders except as stated in the Privacy Disclosure. If Bidder has a maximum bid amount set and Bidder’s current bid amount is exceeded by another bidder, Bidder’s new bid amount will increase by the minimum bid increment over the existing high bid. This adjustment will happen in perpetuity until Bidder’s maximum bid amount is reached, as long as that maximum bid creates an increase to the high bid equal to or greater than the minimum bid increment. If more than one bidder creates an identical Maximum Bid, the software will default to the bidder that set the Maximum Bid first. At any time during the Auction, if RRA believes a bid to be fraudulent, in error, or for any other reason not beneficial to the Seller and/or the bidding process, RRA may remove that bid from the Auction. As the Bidder, if you bid in error, please call our office at (262) 732-5800 as soon as possible. At RRA’s discretion, we will do our best to correct the problem or delete the erroneous Bid. In the final hours of bidding errors may not be correctable. Please place your bids carefully and use the “Practice Bid” Auction prior to making official Bids on real Auctions.
7. If Bidder’s bid is accepted by Seller, Bidder becomes the Buyer upon execution and completion of an Offer to Purchase. Buyer agrees to pay RRA a Bidder Fee, if any, according to the terms of that particular auction. Buyer can pay this fee out of pocket at closing via Cashier’s Check, in which case the Bid Price will be the Sales Price on the Offer to Purchase. Alternatively, Buyer can add it to the Bid Amount. In this case the Sales Price will equal the Bid Amount plus the Bidder Fee. As an example, if the successful Bid Amount is $200,000 and the bidder fee is 3%, thus making the Bidder Fee $6,000, the Sales Price on the Offer to Purchase would be $206,000. The Bidder Fee would then be paid to RRA on the Closing Statement.
8. Buyer Agent Fees – Bidder will be responsible to pay its Buyer Agent out of pocket for any commissions or fees it owes unless it's included in the Offer to Purchase.
9. Bidder agrees to enter into an Offer to Purchase on State of Wisconsin approved “WB” forms, or other forms as may be agreed to, within 48 hours of Seller’s acceptance of their bid. An example is included in the Documents section. The Offer to Purchase will be sent to Bidder for electronic signatures unless other arrangements are made.
a. Each individual auction may dictate which contingencies will be allowed in the Offer to Purchase such as Inspection, Testing, Survey, Zoning, Land Use, Sale of Home, or any other contingency of any kind. Buyer agrees to perform all due diligence prior to bidding and place a bid accordingly, except as noted below in this section or in the Auction itself.
b. A Financing and/or Appraisal Contingency in the offer may be acceptable unless noted otherwise in the Auction itself. Otherwise, Bidder’s Offer will be considered as a Cash Offer.
c. Cash Offers, while not having a Financing and/or Appraisal Contingency, are allowed to have an appraisal and financing to be obtained for the property but are still subject to the agreed upon closing date should the appraisal and/or financing not be completed in time or be satisfactory to the Lender.
d. The closing date for the sale shall be the earlier of 45 days after the Offer is signed by all parties or the first business day thereafter, unless otherwise agreed to by the parties or noted in the Auction itself.
e. If there is personal property that the Seller intends to leave at the premises, the parties agree that those items are not part of the Auction, have no monetary value, and are being left for the Seller’s convenience. Any personal property that Buyer may purchase from Seller are not part of the Auction. Any personal property remaining at the premises 30 days after the closing date shall be deemed abandoned by the Seller.
f. If Buyer does not enter into an Offer to Purchase within 48 hours of receiving notification of having the winning Bid, at Seller’s discretion, Buyer may be considered in default. With Seller’s instruction, RRA will deliver to Buyer a notice of default. Buyer agrees that upon receiving the notice of default, Buyer will not pursue any action that would prevent or cloud Seller’s ability to terminate/reject the Buyer’s bid, accept another Bid and/or sell the property to someone else.
10. Earnest Money will be equal to the greater of 2% of the Sales Price with a $5,000 minimum and $20,000 maximum and will be held in the RRA Trust Account. Earnest Money shall be delivered within 72 hours of receiving the signed Offer to Purchase, should be in the form of a Personal Check or Cashier’s Check, be made payable to “Redefined Realty Trust”, and be mailed or delivered to the Redefined Realty and Auction office at N51W24953 Lisbon Rd Pewaukee, WI 53072 (Inside the Meijer Store). We do not accept wired funds.
11. All bidding is controlled by the Auctioneer including, but not limited to, bid start and stop times, and minimum bid increments. Once bidding starts, the Auctioneer may pause the auction at the Auctioneer’s discretion. Typically, but not always, this is due to technical difficulty. Once the Auctioneer restarts the bidding, at the Auctioneer’s discretion, the bidding stop time may or may not be extended to account for the delay. The Auctioneer may also change the minimum bid increment amount as the Auction progresses. Typically, but not always, the minimum bid increment amount will be lowered as the end of the Auction approaches. Once the Auction reaches the final 10 minutes, any bid made within that timeframe will automatically reset the bid clock to 10 minutes. This will continue in perpetuity until no more bids are made within that final 10 minutes; when that happens, the Auction will be closed, and no more bids will be allowed. The Seller will then review all the bids and other terms therein. Due to potential technology issues, potential software issues, utility and internet outages, and/or other seen or unforeseen issues, Bidders are discouraged from placing last-second or even last-minute bids.
Auction Company: Redefined Realty and Auction; License #1004-53
Registered Wisconsin Auctioneer: Robert J Tarantino; License #4204-52
United States
Auction Documents:
At Closing unless otherwise agreed to in writing
